Petawawa is giving the green light to allow two restaurants in a new development. On Monday night (Nov. 7th, 2022), council approved some changes to the second phase of the REMAX development agreement.
Director of Planning and Development Karen Cronier told council the new owner would like some flexibility and the opportunity for restaurants on-site. With some minor amendments to the development agreement, Cronier says it makes sense to allow the changes.
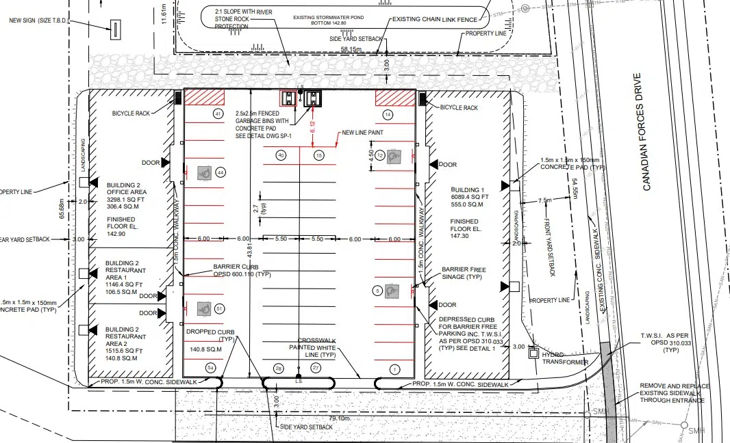
There was no indication as to what types of restaurants or businesses would be in the second phase of the REMAX development.
The plans presented by JP2G Consultants show the new building beside the REMAX office on Canadian Forces Drive will have 3,200 square feet of office space and two restaurants from 1,100 to 1,500 square feet in size.
(written by: Rudy Kadlec)
